Ref.: A2911
Stone house with a private garden (around 2000 sqm) in a splendid panoramic location.
The property is reached via a municipal road that passes through a picturesque wooded landscape.
The property is located between Montefalcone Appennino and Santa Vittoria in Matenano.
The house is nestled along the perimeter of a small, ancient rural hamlet. Facing southeast, it offers breathtaking views of the Aso River Valley, the surrounding hills, and the medieval villages perched on the hilltops.
The stone building was expertly renovated in 2009, fully respecting its original features while incorporating the comfort of new systems and the owners’ unique aesthetic taste. Nothing was left to chance: the interior layout maximizes the available space, the colors, the combinations, the finishes, the lighting, the furnishings, and the unique, poetic objects. The overall effect is warm, peaceful, and welcoming, both inside and out, with its terraced garden.
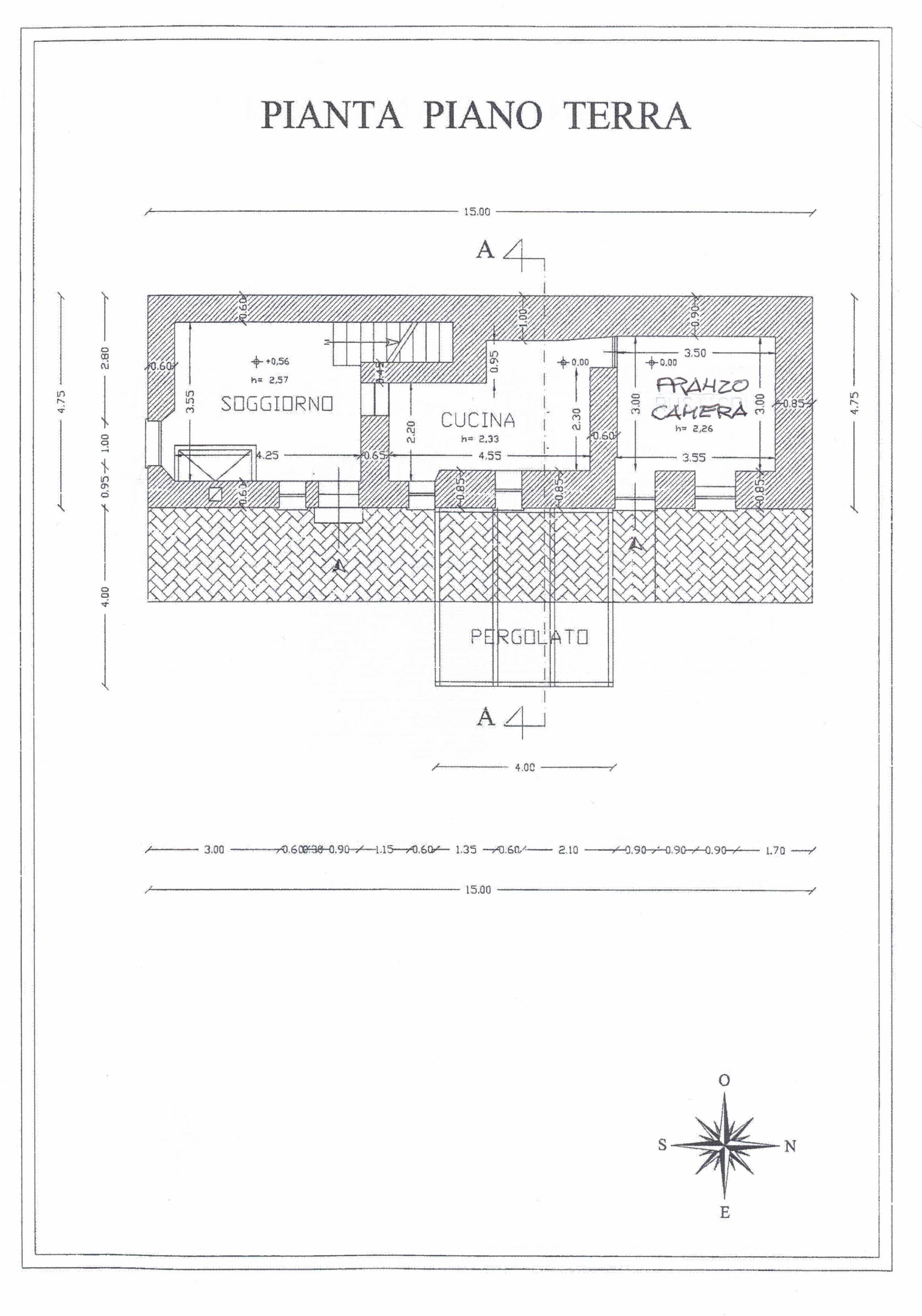
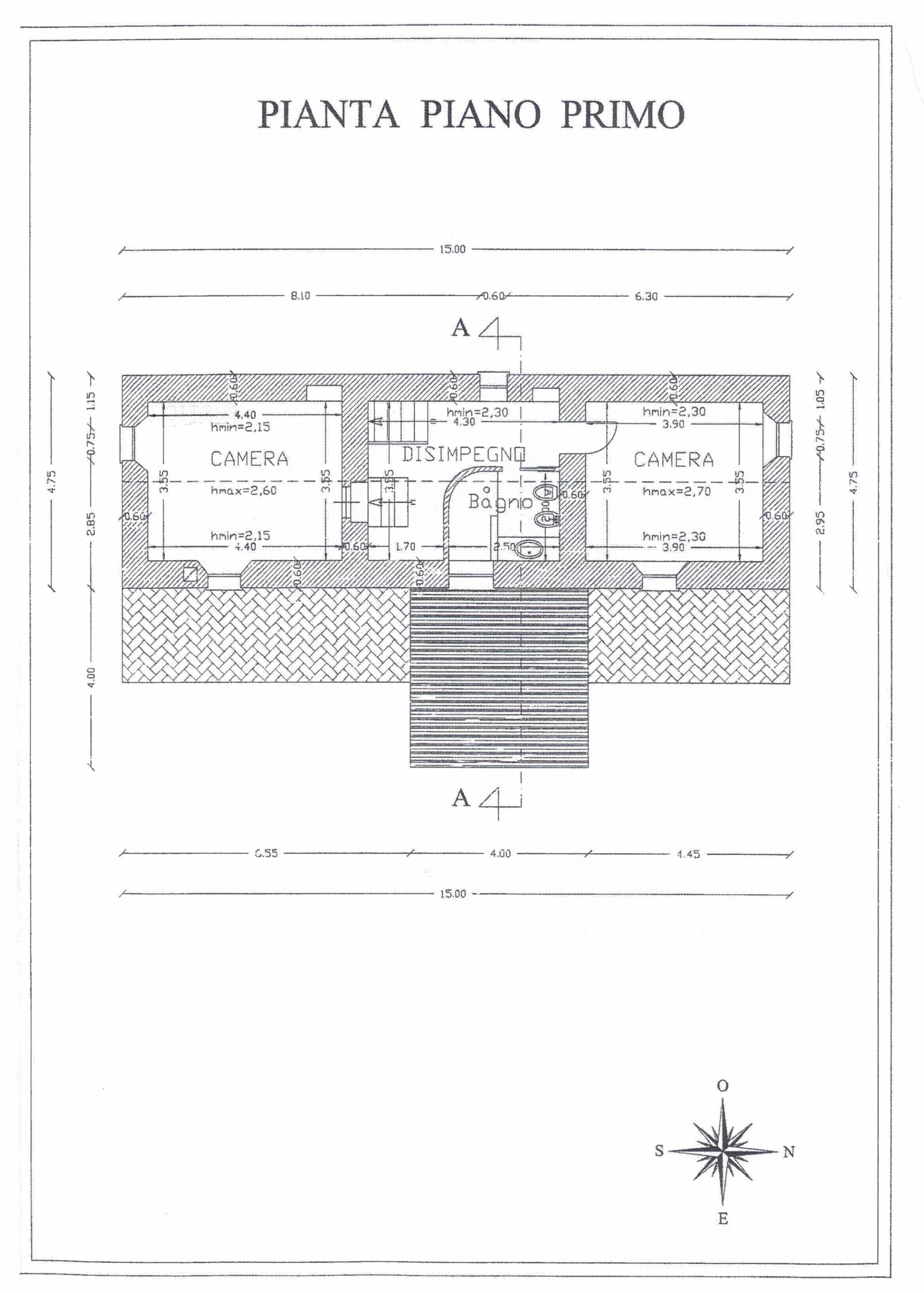
The two-story building has a total gross floor area of 143 square meters. The ground floor comprises a living room with a wood-burning fireplace, a fully equipped kitchen, including a dishwasher and washing machine, a large countertop, a Falcon range cooker with an oven, and a large ceramic sink facing the panoramic window. The dining area also doubles as a bedroom. On the ground floor, with external access, is a small adjoining loo with an outdoor shower for warmer weather. The first floor comprises the master bedroom, a double guest bedroom, and a splendid bathroom with a bathtub, all designed by Devon & Devon.
Attached to the building is a pergola with a table and chairs for outdoor dining and relaxation.
The home is equipped with all basic services, including electricity (6kW), mains water connection, LPG heating, and a wood-burning fireplace.
The house is sold partially furnished.


























































